Tank Unit for kemikalier
Tapflo´s tank serie af tank units, anvendes i de fleste industrier, hvor væsker skal lagres, pumpes og evt omrøres – nemt og økonomisk.
Vores løsning er baseret på den klassiske gennemprøvede Tapflo T-serie membranpumpe. Denne pumpe kan transportere næsetn enhver væske, om den er viskøs, kemisk agressive eller partikelfyldt.
Forskellige størrelse af tanke og pumper kombineres, evt sammen med forskellige opgavespecifikke options: doseringenheder, omrørere m.m.
APPLICATIONS
FORDELE
Tapflo´s tank serie af tank units, anvendes i de fleste industrier, hvor væsker skal lagres, pumpes og evt omrøres – nemt og økonomisk.
Vores løsning er baseret på den klassiske gennemprøvede Tapflo T-serie membranpumpe. Denne pumpe kan transportere næsetn enhver væske, om den er viskøs, kemisk agressive eller partikelfyldt.
Forskellige størrelse af tanke og pumper kombineres, evt sammen med forskellige opgavespecifikke options: doseringenheder, omrørere m.m.
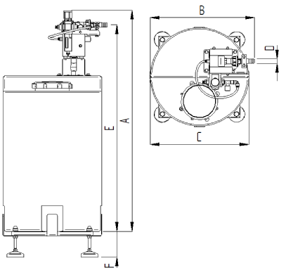
Flexible hose connector:
Simple and stable connection to fit flexible hoses.
Diaphragm Pump:
Suitable to handle almost every liquid. It is a chemically resistant, solid and strong pump.
Suction lance, strainer, foot valve:
Liquid filtration and protection from spillage.
Support stand:
For transportation and stable positioning
Filter regulator & needle valve:
Control discharge pressure and pumping capacity.
Circulation pipe:
With flexible hose connector.
Lid of tank:
Use built-on pipe to fill tank with liquid. Then close it tight with a lid
Scale in liters:
Control volume of liquid by using scale put on side of a tank.
| Model | A | B | C | D | E | F |
| TNK-100-TR20PTT | 1031 | 487 | 460 | Ø20 | 963 | 120 |
| TNK-100-T50PTT | 1104 | 415 | Ø25 | 1033 | ||
| TNK-300-TR20PTT | 1136 | 709 | 770 | Ø20 | 1068 | |
| TNK-300-T50PTT | 1209 | 734 | Ø25 | 1138 | ||
| TNK-500-TR20PTT | 1510 | 709 | Ø20 | 1454 | ||
| TNK-500-T50PTT | 1597 | 733 | Ø25 | 1524 | ||
| Compressed air connection | ||||||
| TR20 PTT | Ø8 Push-in fitting | |||||
| T50 PTT | Ø10 Push-in fitting | |||||
Flexible hose connector:
Simple and stable connection to fit flexible hoses.
Diaphragm Pump:
Suitable to handle almost every liquid. It is a chemically resistant, solid and strong pump.
Suction lance, strainer, foot valve:
Liquid filtration and protection from spillage.
Support stand:
For transportation and stable positioning
Filter regulator & needle valve:
Control discharge pressure and pumping capacity.
Circulation pipe:
With flexible hose connector.
Lid of tank:
Use built-on pipe to fill tank with liquid. Then close it tight with a lid
Scale in liters:
Control volume of liquid by using scale put on side of a tank.
| Model | A | B | C | D | E | F |
| TNK-100-TR20PTT | 1031 | 487 | 460 | Ø20 | 963 | 120 |
| TNK-100-T50PTT | 1104 | 415 | Ø25 | 1033 | ||
| TNK-300-TR20PTT | 1136 | 709 | 770 | Ø20 | 1068 | |
| TNK-300-T50PTT | 1209 | 734 | Ø25 | 1138 | ||
| TNK-500-TR20PTT | 1510 | 709 | Ø20 | 1454 | ||
| TNK-500-T50PTT | 1597 | 733 | Ø25 | 1524 | ||
| Compressed air connection | ||||||
| TR20 PTT | Ø8 Push-in fitting | |||||
| T50 PTT | Ø10 Push-in fitting | |||||
Vi tilbyder et bredt udvalg af udstyr, der anvendes på tværs af alle industrisektorer, både i små og store virksomheder. Vi tilbyder professionelle enheder til anvendelser inden for:
Pumper og udstyr til den kemiske industri
Den kemiske industri er en meget stor og vigtig sektor i økonomien, som omfatter alle typer virksomheder, der fremstiller deres produkter ved hjælp af kemikalier. Producenter i den kemiske industri skaber både færdige produkter til slutbrugere og mellemprodukter, der er nødvendige i mange andre sektorer af økonomien. Tapflo har i mange år leveret moderne industriløsninger, der forbedrer produktionsprocesserne og effektiviteten i den kemiske produktion. Vi ved, at håndtering af kemikalier kræver udstyr i topkvalitet, og det leverer vi. Vores tekniske team sørger for at vælge det rigtige udstyr til hvert kemikalie, f.eks. pumper, ventiler, filtre, blandere og omrørere, der er skræddersyet til det specifikke medie. Tapflos udstyr byder på sikkerhed, nøjagtighed og optimerede produktionsomkostninger.
Den farmaceutiske industri kræver den højeste renhed og pålidelighed. Tapflo leverer pumper og udstyr, der opfylder strenge hygiejnestandarder takket være EHEDG-, FDA- og USP VI-certificeringer og fremstilling i rustfrit stål AISI 316L. Vi garanterer sikker transport af lægemidler og aktive stoffer med mulighed for CIP/SIP-rengøring, og vores pumper sikrer skånsom pumpning af emulsioner eller præparater med forskellig viskositet. Vores sortiment suppleres med præcise doseringspumper, pulverpumper samt ventiler og homogenisatorer.
Pumper og udstyr til den galvaniske industri
Den galvaniske industri spiller en nøglerolle i produktionen af en række metalkomponenter, som er vigtige i mange industrier som f.eks bilindustri, elektronik, byggeri, boligindretning, landbrug etc. I galvaniseringsprocesser er det vigtigt at bruge udstyr, der er designet til at arbejde i aggressive miljøer – med kemikalier, syrer eller baser.
Pumper og udstyr til kosmetikindustrien
Kosmetikindustrien er en hurtigt voksende branche, hvor kvalitet og produktionseffektivitet er afgørende. For at nå disse mål, er moderne og pålideligt udstyr som pumper og omrørere afgørende. Med de mange forskellige produkter, der er til rådighed, kan Tapflo skræddersy en flowløsning, der opfylder kosmetikindustriens specifikke behov. Vi garanterer præcision, effektivitet og sikkerhed, hvilket resulterer i kosmetiske produkter af højere kvalitet og øget forbrugertilfredshed.
Fødevarepumper og udstyr til fødevareindustrien
Pumper og udstyr til fødevareproduktion spiller en vigtig rolle i at sikre effektive, hygiejniske og sikre produktionsprocesser. Investeringen i udstyr af høj kvalitet betaler sig ved at forbedre produktkvaliteten, øge produktiviteten og reducere driftsomkostningerne. Ved at vælge fødevarepumper og mixere fra Tapflo, kan fødevarevirksomheder imødekomme markedets udfordringer og levere produkter af højeste kvalitet til forbrugerne. Hver Tapflo enhed overholder de krævede hygiejnestandarder, såsom FDA, CE1935/2004, materialecertificering 3.1 eller ATEX-certificering. Ydermere føres der en log på hvert enkelt leverede produkt, så der er fuld sporbarhed.
Pumper og udstyr til produktion af dyrefoder
Foderindustrien er et dynamisk segment inden for fødevareindustrien, der specialiserer sig i fremstilling af afbalanceret foder til hunde, katte og andre kæledyr og husdyr. Tapflo leverer moderne udstyr til foderfabrikker, der sikrer den højeste hygiejne og driftspålidelighed. Vores løsninger kan nemt håndtere forskellige konsistenser – fra flydende tilsætningsstoffer til tykke foderblandinger – uanset temperatur og viskositet.
Vi præsenterer hermed hele sortimentet af produkter, vi leverer. Tilbudene her er rettet mod brugere inden for forskellige industrielle anvendelser. Vi opfordrer dig til at udforske vores omfattende portefølje, som omfatter pumper, varmevekslere, homogenisatorer, hygiejniske ventiler, filtre og et bredt udvalg af andre løsninger.Vi leverer omfattende, professionelle og frem for alt pålidelige membranpumper, centrifugalpumper og andet udstyr, der sikrer sikker og problemfri væsketransport.Vores fyrre års erfaring og et kvalificeret team af top specialister garanterer, at det industrimateriel, vi leverer, lever op til forventningerne hos selv de mest krævende kunder.Vores membran-, centrifugal-, vortex-, tandhjulspumper, doseringspumper og mange andre finder anvendelse inden for forskellige industrisektorer.
Membranpumper er robuste og enkle pumper for produkter som er aggressive, slidende, med partikler eller med varierende viskositeter.Tapflo T-serien af trykluftdrevne membranpumper er kendetegnede ved en uhyre enkel og robust konstruktion, med ca. 70% færre dele end andre membranpumper. Et bredt udvalg af konstruktionsmaterialer, gør det muligt at pumpe, langt de fleste produkter – selv de mest kemiske agressive. Tapflo TC-serien, er en hybrid variant, af den klassiske trykluftdrevne Tapflo membranpumpe. Stadig med de unikke fordele som opnås ved driften med trykluft, med med en indbygget styring af trykluften, som giver lavere luftforbrug, og mulig for eksakt kontrol af pumpens drift. Den specielle pumpetypen byder også på en mere pulsationsfri drift, end den traditionelle trykluftdrevne pumpe.
Den aktive pulsationsdæmper, er en yderst effeftive metode til at udjævne trykvariationer i pumpens udløb.
Tapflo DT-serie pulsationsdæmperen fungerer ved, at trykluften der også driver pumpen, automatisk indstiller sig til det tryk, der giver mindst mulige trykvariationer. Ved elektriske pumper, anvendes pulsationsdæmperen i “statisk mode”, hvor funktionen opnås ved at tilføre et fast lufttryk. Ved begge installationstyper er luftforbruget minimalt.
En filterpressepumpe er en specialiseret type pumpe designet til at fylde en filterpresse med en gylle eller suspension fra et eksternt lager- eller bortskaffelsesanlæg, typisk anvendt i faststof-væskeseparationsprocesser, normalt ved høje tryk op til 24 bar.Tapflo filterpressepumper er kendt for deres robuste konstruktion, pålidelige ydeevne og evne til nemt at håndtere højtryksapplikationer. De er udstyret med en kontraventil for at forhindre tilbageflow og fås i forskellige materialer, der passer til forskellige proceskrav. Luftdrevne filterpressepumper har den unikke funktion, at når filterpressen er fuld, stopper de, og der kræves ingen yderligere sikkerhedssystemer til at slukke pumpen (som i tilfælde af elektrisk drevne filterpressepumper).
Centrifugalpumper er førstevalget, når der skal pumpes lavviskøse væsker med et jævnt flow. De byder på en høj kapacitet, set i forhold til deres indkøbspris og driftsomkostninger, og de kan konfigureres til en lang række opgaver indenfor mange forskellige industrier.
Vores centrifugalpumper kan leveres med forskellige tætningsløsninger, f.eks. enkel eller dobbelt mekaniske akseltætning. En anden løsning kan være en 100% lækagefri magnetkoblet pumpe, often benævnt en “magdrive” pumpe. Her kan vi endda tilbyde en løsning, som tolererer tørløb, luftlommer og partikler i væsken – noget som ellers er uhørt med disse pumper.
Lobepumper, eller loberotorpumper som de også kaldes, anvender to synkroniserede loberotorer til at skabe henholdsvis sug og tryk. Der er ingen fysisk kontakt mellem loberotorerne. Lobepumper er ideelle ved transport af viskøse, og oftest omrøringsfølsomme, produkter. De byder på lang gangtid, lavt støjniveau og energieffektiv drift.
8 pumpestørrelser kan leveres, med kapacitet op til 82 m3/h og et maksimalt tryk på 10 bar. Ingen fysisk kontakt mellem rotorerne. Pumper med skyllede dobbelte mekaniske akseltætninger, tåler uendeligt tørløb. Husmateriale: støbejern. Service kits sikrer hurtig udskiftning af standard sliddele
Det er en reel problemløser, når der skal pumpes hygiejnisk med både høje og lave viskositeter, ved høje tryk og temperaturer – mens der opnås maksimal driftssikkerhed.
Vores Ampco ZP3-serie af drejestempelpumper, kan rengøres med CIP, og er udført med alle flader i syrefast/rustfrit stål, og kan leveres på en stabil modular Tapflo Solutions bundramme med drivenhed. Det hele leveres med en komplet dokumentationspakke, som tager højde for kravene indenfor pharma, føde- & drikkevarer, kosmetik etc.
En slangepumpe, også kendt som en peristaltisk pumpe, er en sand problemløser. Med dens enkle og robuste konstruktion, anvendes den ofte hvor der skal pumpes tyktflydende og slidende partikelfyldte produkter. Den kører med lav rotationshastighed, og byder dermed på en enestående slidstyrke, især når den anvendes sammen med de specielle Tapflo uslebne præcisionsslanger. Opgaver hvor der er krav og stærk sugeevne, er også indikerende for brug af slangepumper. En Tapflo PT-serie slangepumpe, leverer tæt på fuldt vakuum (9m sugeløft), og har intet problem med luftlommer i produktet, og tørløb generelt. Fraværet af akseltætninger, eller magnetkobling, og med slangen som eneste reelle sliddel, gør vedlighold hurtigt og økonomisk. Slangepumper anvendes typisk ved sværere industrielle opgaver og indenfor føde- og drikkevareindustrien.
Mange dykpumper er gode til at lade relativt cirkulære partikler passere – uden skader på pumpen. Men til tider er ønsket, at der ikke skal komme partikler og fremmedlegemer igennem pumpen, og at de i stedet skal forblive der hvor det urene vand skal pumpes fra.
Der er også opgaver, hvor vandet indeholder såkaldte ”stringy objects”, altså aflange fremmedlegemer, som kan sætte sig fast i pumpen, eller i slange- og rørsystem, og andet procesudstyr, efter pumpen. Der kan være tale om plasticposer, reb, tøjstykker, tang, fisk, muslinger og lignende.
Tapflo Denmark ApS is a partner of Spanish company Gefico S.L. and exclusive supplier of Gefico S.L. products in Denmark. We offer solutions for marine industry, offshore platforms and land based installations.
Our focus is production of fresh water from sea water. Tapflo Denmark ApS offers reverse osmosis units and fresh water generators (evaporators), as well as wide range of pre-treatment and post-treatment water purification systems.
Et bredt spekter af opgaver løses med mixersystemer fra Tapflo Danmark.
Oftest omrøring direkte i palletanke (IBC), tromler og specialbyggede mindre og mellemstore tanke. Der er også mulighed for kombineret pneumatisk pumpning og mixning, med vores Tapflo PneumixerTM.
FT filterenhederne er udviklet til at fungere effektivt og sikkert, ved en lang række opgaver, oftest indenfor galvanisk industri (overfladebehandling). Anvendelsen af mange agressive kemikalier gør, at vi med designet af FT-serien, har haft et klart fokus på sikkerhed.
Vi leverer komplette løsninger til den kemiske, fødevare-, farmaceutiske, kosmetiske og papirindustri.
Vores produkter er fuldstændig sikre og miljøvenlige og opfylder de strenge kvalitetskrav, der er fastsat i nationale og internationale standarder og direktiver. Derfor samarbejder vi kun med partnere, der arbejder efter lignende værdier.
Tapflo Group er en familieejet virksomhed, der med en udpræget decentral struktur, arbejder lokalt via mere end 28 globale forretningsenheder, med samlet ca. 400 ansatte. Vores fokus er udvikling og produktion af flowløsninger; pumper eller udstyr centreret omkring pumper. Udvikling og produktion finder sted på vores moderne fabrik, tæt på Gdansk i Polen.
Vi samarbejder endvidere med et begrænset antal anerkendte udviklere og producenter af kvalitetsudstyr, til vores kernemarkeder.
Hollandske ARBO Pompen er en global Tapflo Group samarbejdspartner, med speciale i pumper og filtre i plast. Programmet spænder bredt, og anvendes i alle industrier hvor kemisk angreb af metal, ellers ville give problemer. Virksomheden blev grundlagt i 1954 af Arnold van den Born, nær Amsterdam. I dag er produktionen flyttet til byen Smilde, men ARBO er stadig i familiens eje.
ARBO Pompen råder over en moderne maskinpark, og stor know-how vedr konstruktion og produktion af industripumper og filtre. Typisk anvendes massiv bearbejdet plast, for derved at minimere risikoen for spændinger i plasten, og for at give en mere temperaturstabil konstruktion.
SAWA Pumpen har produceret pumper til medicinalindustrien, siden 1954 – men SAWA´s første egenudviklede pumpe så dagens lys, allerede i 1936.
Siden virksomhedens opstart, har det været en ufravigelig regel, aldrig at gå på kompromis med hensyn til kvalitet i konstruktion, fremstilling og dokumentation.
Standardprogrammet er bredt, og med mulighed for specialtilpassede løsninger.
Gefico, med base i Spanien, er en førende producent af vandbehandlingsudstyr, primært ferskvandsgeneratorer og RO-anlæg til den maritime sektor. Det brede program bygger på mange års erfaring inden for flere sektorer, og er medvirkende til at Gefico i dag tilbyder nogle af markedets mest effektive ferskvandsanlæg.
Gefico arbejder med fire sektorer: marine, offshore, landbaseret og lystbåde.
Tapflo Danmark har været Gefico´s danske enedistributør siden slutningen af 90érne, samt svensk og finsk enedistributør siden 2016. Vi tilbyder komplette maskiner og reservedele med fuld teknisk support og korte leveringstider.
talienske CDR Pompe s.r.l, er en mangeårig udvikler og producent, af kemimpumper. Virksomheden fokuserer på magnetkoblede pumper, i syrefast stål eller plastmaterialer. CDR Pompe har været i familieeje gennem to generationer, og er også i dag, ejerledet. Dette betyder ”korte kommandoveje”, hvilket er afgørende ved implementeringen, af virksomhedens ambitiøse udviklingsprogram.
Tapflo Group har været samarbejdspartner med CDR Pompe i mange år, og leverer deres pumper til en stor del af det Europæiske marked.
AMPCO Pumps Company, er en Amerikansk producent, af primært pumper til fødevareindustrien, medicinalindustrien, bryggerier og kosmetisk industri. I Danmark og Norge, leverer vi deres anerkendte ZP-3 serie drejestempelpumpe, som kan CIP-rengøres.
Kendetegnende for APMCO er, at produkterne er yderst robuste, og at der tilbydes markedsledende “value for money”. Den størst mulige driftssikkerhed sikres ved anvendelse af en kompromisløs tilgang til materialevalg, og generel konstruktion.
Engelske Rotorflush, er producent af en række patenterede selvrensende filterløsninger, for både neddykkede og tørt opstillede pumper. Opfundet af den nuværende ejer og direktør for virksomheden, Jim Hosford, finder deres filterprincip primært anvendelse ved pumpning af snavset vand. Typiske industrier er: spildevandsbehandling, fødevarer, olie- og gas, landbrug m.m.
Systemet giver en væsentligt forbedret gangtid på pumper, og lader feks ål tilbage, ved vandindtag. Rotorflush systemer og filterpumper, går størrelsesmæssigt fra små filtre til havebassiner, til store skræddersyede pumpefiltre på over 1.000 m3/time. I det imponerende program fra Rotorflush findes også en prøveudtagningsenhed, som sikrer partikelfri prøvetagning.
Koflo Corporation blev grundlagt i 1983 med det formål at levere statiske mixere af højeste kvalitet til konkurrencedygtige priser, med et fokus på højeste kundetilfredshed. Baseret på disse principper er Koflo blevet en leder inden for den globale statiske mixerindustri.
I november 1990 byggede Koflo sin nuværende produktionsfacilitet i Cary, Illinois, en forstad til Chicago, USA. Den unikke beliggenhed har gjort det muligt for Koflo at tiltrække medarbejdere med en stærk arbejdsmoral og samtidig udnytte de mange ressourcer, der er tilgængelige i regionen omkring Chicago.
Vi specialiserer os i at designe ukonventionelle løsninger, der er skræddersyet til vores kunders mest krævende behov. Vi gør dette ved at introducere yderligere funktionaliteter til de tilbudte enheder, øge deres mobilitet, justere deres dimensioner eller introducere avancerede sikkerheds- og kontrolsystemer. Vi tilbyder alle løsninger, der øger komforten og sikkerheden ved arbejdet, såsom stationære og mobile systemer til aflæsning af medier fra tanke, tønder, IBC-beholdere osv.Vores mission er at levere tekniske løsninger, der garanterer korrekt funktionalitet og stabil drift i ethvert miljø.
Tromlertømmer for høj viskositet (HVS)
Aflæsning af tromler fyldt med højviskose væskerhar aldrig været nemmere. Vores High Viscosity System (HVS) er designet til at forenkle denne opgave, idet det tilbyder automatiseret effektivitet og enestående produktbesparende funktioner. Med HVS vil du opleve englat losningsproces, så du kan fokusere på andre kritiske opgaver, mens du opnår op til 99% produktfjernelse. Sig goddag til ubesværet tromleafføring med HVS.
Forenkleudladning af højviskøse væskermed vores High Viscosity System Quattro-type (HVS Quattro). Det er designet tilhøjvolumenapplikationer, hvor flere tromler(typisk fire) opbevares på paller. HVS Quattro giver dig mulighed for nemt at skifte mellem tromlerne takket være voresrevolutionær artikuleret arm.Oplev en imponerendeproduktfjerningsrate på op til 99 %som vil reducere dine produktionsomkostninger.
Aflæsning af tromler indeholdende meget viskøse væskerer blevet mere effektiv og præcis med vores High Viscosity System Flexi-type (HVS Flexi). Dette systemforenkler opgaven, der leverer automatisering og effektive produktopsparingsegenskaber. HVS Flexi sikrer en problemfri losningsoplevelse, så du kan koncentrere dig om andre vigtige opgaver, samtidig med at du opnår en imponerendeprodukter fjernelse rate på op til 99%. Det er velegnet til applikationer medlav til moderate mængder, såsom direkte levering til fylde- eller pakkemaskiner.
Beholder- & tromletømmersystem
Erfaringeffektive og sikre tømmeoperationer af tankemed vores fleksibleUnloading System. Designet til at håndtere IBC’er (Intermediate Bulk Containers), Mauser, Goodpack eller Bag-in-Box® containere, totes, tromler, fade og forskellige andre opbevaringsbeholdere, administrerer dette system effektivt bådelav- og højviskositetsprodukterpå tværs af en bred vifte af brancher. Brug af en pålideligudsugningslansemekanisme, dets innovative design ogtilpasseligt kontrolsystemsikre optimal ydeevne, samtidig med at opretholde den højesteindustrielle sikkerhedsstandarderRegler:
– Oversæt kun indhold, bevar formatering
– Hvis det er HTML-kode, oversæt kun tekstindhold, ikke tags
– Bevar alle tags, attributter og struktur
– Tilføj ingen kommentarer eller forklaringer
– Returner kun den oversatte tekst
Tekst der skal oversættes:
.
Tapflo offers integrated solutions as an possibility to apply standard devices in non-standard applications.
Combining different flow components into one complex unit is an opportunity to suit individual customers’ needs, that are related to: required equipment & functionality, available space, position of connecting flanges, mobility.
SLES or Sodium Laureth Sulfate, is an organic chemical compound, called a surfactant, with excellent cleansing and foaming properties. For this reason, it is an ingredient of various detergents, household products, soaps, and shampoos.
SKID - Customised Process Units
Based on strong experience in design and production, Tapflo offers wide range of compact process pumping systems.
We create units that are dedicated to certain applications in certain industrial sectors. In Tapflo we provide almost limitless possibilities of pump units’ development, both in mechanical & automation disciplines.
Vores løsning er baseret på den klassiske gennemprøvede Tapflo T-serie membranpumpe. Denne pumpe kan transportere næsetn enhver væske, om den er viskøs, kemisk agressive eller partikelfyldt.
Automation & Control solutions
Tapflo is proud to announce, that we have broaden our offer with automation & control solutions.
By using both pneumatic and electric devices to monitor flow parameters, we are able to ensure safe work of all Tapflo pump units.
Den elektroniske doseringsenhed er en automatiseret løsning, konstrueret til at levere præcis og økonomisk dosing ved ”batching”, baseret på den klassiske Tapflo membranpumpe.
Alternativt kan også tilbydes en løsning, med en elektrisk Tapflo slangepumpe.
Hygiejniske isoleringskapper. Tapflo hygiejniske isoleringskapper, er dedikeret til brug med Tapflo tryklufdrevne membranpumper.
Industrielle kapper. De industrielle isoleringskapper fra Tapflo, kombinerer brugervenlighed med høj materialekvalitet, og byder på mange års drift, ved næsten enhver opgave.
Achieving precise ingredient blending for the desired end product, while maintaining strict proportions, accuracy, and sequence, poses a formidable challenge for industrial manufacturers.
The In-line Blending System was created exactly for this application. It makes the production automatic, produces exactly by the recipe, and requires no human work. It is precise and it records every operation.
Opnå præcise og repetérbare fyldeoperationer med vores alsidige fyldemaskinesystem. Dette system, som er designet til applikationer med krav om høj nøjagtighed, håndterer effektivt forskellige beholderstørrelser og produkttyper, fra beholdere med lille volumen til store industrielle tromler. Med en påfyldningsnøjagtighed på mindre end 0,1% og omfattende rapporteringsfunktioner, sikrer vores system optimal ydeevne for din produktionslinje, samtidig med at de højeste industrielle og hygiejniske standarder opretholdes.
Én og samme pumpe kan avendes på flere lokationer i produktionsområdet. Mobiliteten betyder en besparelse, da antallet af pumper kan minimeres. Samtidigt falder risikoen for skadeforvoldende fejbetjening, da driften samles på færre og identiske pumpetyper.
Systemtype









